Un espace repère pour les enfants.
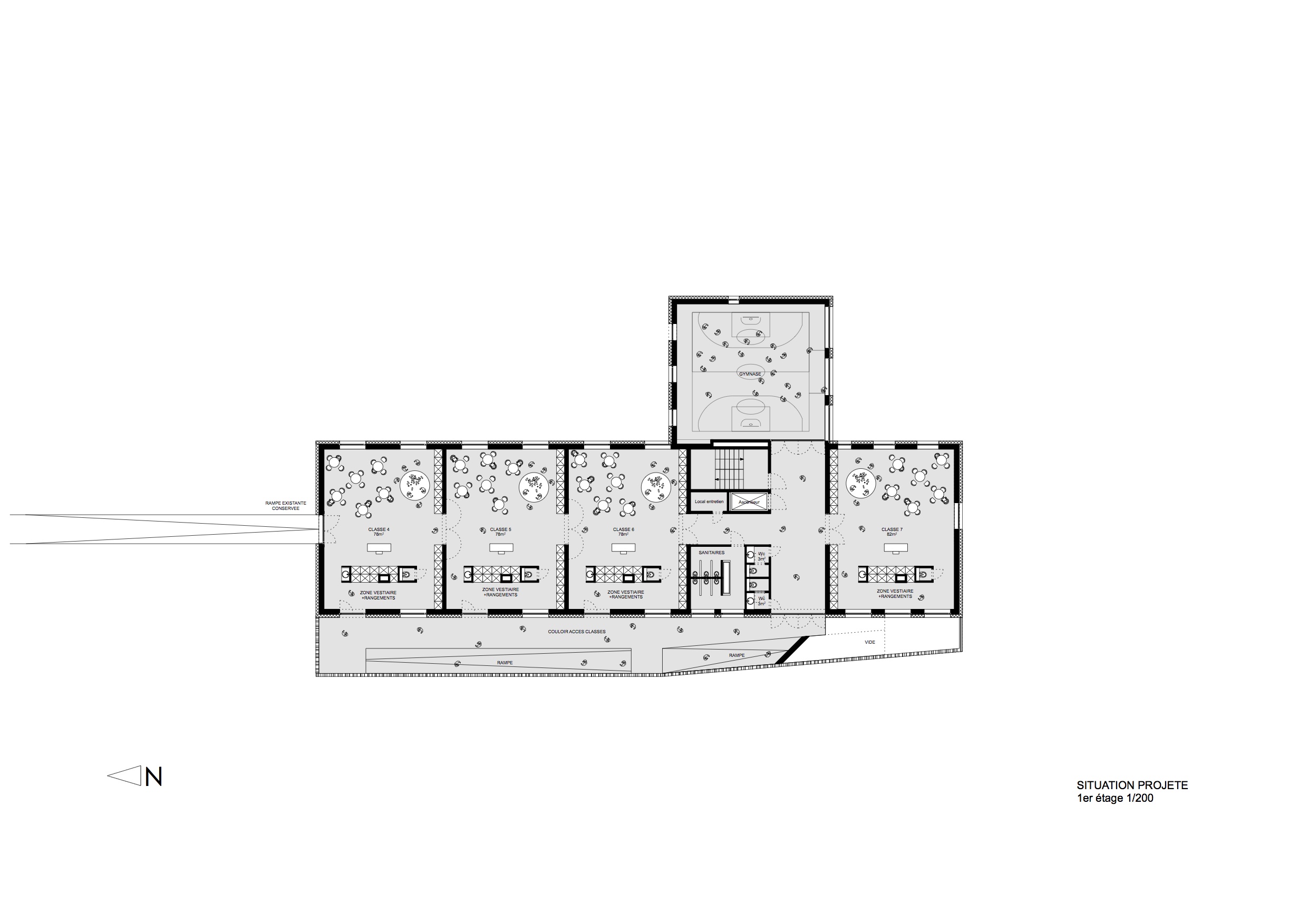
Ce nouvel espace intérieur non chauffé redéfinit l’entrée et l’identité de l’école. Dès l’entrée, la lecture des différents accès aux classes est rendue évidente, permettant à chaque enfant de s’orienter facilement au sein de l’établissement.
La nouvelle circulation douce (entre pente et escalier) facilite la montée vers le premier étage, puis vers le
toit que nous proposons d’aménager en terrasse. L’escalier existant, et la trémie d’ascenseur, sont conservés comme circulation secondaire (PMR) ou de secours.
Cette espace tampon, permet de réguler les accès, et d’éviter les courants d’airs dont souffrent beaucoup d’établissement scolaire. Il fait office de grand sas d’entrée.